中式複式公寓裝修樣板房 處處透着尊貴奢華風範兒

中式複式公寓裝修樣板房 處處透着尊貴奢華風範兒

來自:www.zxdyw.com
日期:2017-01-04 15:57:27
在裝一網推薦的這個充滿貴族感的複式公寓裝修樣板房中,讓東方人文與藝術相親相融,一切如時間般,在這裏模糊了界限,處處透着尊貴奢華風範。一樓是客廳、餐廳和廚房,公共空間很大氣時尚。德國陶瓷藝術品大都以動物造型出現,給空間帶來靈動感。

裝一網今日分享的是一套豪華的複式公寓裝修樣板房,整個空間明亮寬敞,客廳里設計了幾何線條的多層次吊頂,為空間帶來豐富的視覺效果。

入口處設計了美觀時尚又實用的玄關,貼着牆壁定製了黑色的玄關櫃,玄關通道處擺放了金屬小桌,配着藝術品花瓶和名家裝飾畫,充滿了藝術風氣息。

客廳的電視背景牆很有特色,紅色的立體框架與深淺的實木板材搭配,打造出很有層次感的視覺裝飾效果,同時紅色元素為空間帶來華貴、典雅的東方氣韻。

在客廳的設計中,沙發茶几以及龍紋圖案的靠枕、錦鯉的銀箔版畫、跳躍的中國紅,這些傳統元素在黑白色傢具燈具的簡潔中跳脫出來,這種傳統與現代的混搭,讓整個家中都找不到不合格調的平庸死角。

客廳的後面是餐廳,餐廳的採光非常好,地面鋪着灰色幾何圖案地毯,選配了中式風格的餐桌椅,配着藝術品、裝飾畫和綠植點綴,看上去尊貴奢華。

選擇德國瓷器品牌作為空間裝飾的主角,不僅致敬了中國文化,也藉由國外設計師西化的手法演繹出別樣的中國面貌。這些陶瓷藝術品大都以動物造型出現,給空間帶來靈動感。

書房的牆壁上鋪貼了中式風格的壁紙,靠牆擺放了簡潔利索的書桌,配着金屬層架書櫃,牆壁上掛着裝飾畫,整個空間看上去典雅大氣,透着中式的細膩沉靜風範。

卧室的採光非常好,卧室的地面鋪着濃色調木地板,配着暗紫花紋的地毯,卧室的床頭裝飾了中式花鳥圖的屏風,給整個空間帶來華貴典雅氣質。

卧室里還大膽的運用了法蘭西藍,飽和度偏低的紅與藍,結合明度較高的象牙白、鵝黃或金色,組成了經典法式家庭的色彩感受。而這些感受被連成完好的演繹於卧房的設計中。

裝修網點評:這個卧室的採光非常好,大大的窗戶給空間帶來明媚的陽光,窗帘和床頭都是法蘭西藍,這些藍色元素給空間帶來優雅尊貴氣質,床頭擺放了柔和的檯燈,給卧室增加了溫馨感。

上述內容為轉載或編者觀點,不代表裝一網意見,不承擔任何法律責任。如侵權請聯繫刪除。


相關推薦

  • 複式樓梯裝修
  • 小複式公寓裝修
  • 倒複式裝修
  • 複式改造
  • 中式飯店裝修
  • 中式古典裝修風格
  • 廚房門對着卧室門
  • 美式裝修風格樣板間
  • 歐式裝修風格
  • 中式書房
  • 中式掛畫
  • 中式茶樓
  • 哥特式裝修風格
  • 開放式廚房
  • 開放式廚房好不好
  • 開放式書房
  • 步入式衣帽間
  • 開放式衣帽間
  • 歐式客廳
  • 換鞋凳式鞋櫃
  • 歐式電視背景牆
  • 掛壁式魚缸
  • 分離式衛生間
  • 裝修風格

延伸閱讀

  • 簡練中透着華貴 藝術范兒十足的現代別墅裝修實景圖
  • 簡約三層別墅大宅設計 處處透露着大都市的摩登范兒
  • 北歐簡約風複式大公寓 清雅素凈文藝范兒十足
  • 316平米新中式風格複式大公寓設計 安靜又不失雅緻
  • 66平方複式裝修效果圖 擁有小透天般幸福滿足
  • 復刻懷舊美式傢具 詮釋尊貴“平民氣質”
  • 小戶型公寓樣板房裝修 簡約清爽讓你流連忘返
  • 49平小巧小公寓裝修樣板房 糖果色+田園風驚艷世人
  • 用了E0級板材真的環保嗎?來看看E0級板材甲醛釋放量多少

  • 硅藻泥怎麼施工?五分鐘教你學會硅藻泥施工步驟

  • 進門鞋櫃怎麼裝修最合理?裝修網列舉圖片來說明

  • 5平米小餐廳怎麼裝修好看?裝修網分享餐廳裝修設計技巧

本站聲明:網站內容來源於裝修網http://www.zhuangyi.com/,如有侵權,請聯繫我們

【室內裝潢設計廠商推薦】

打造新奇、好玩、舒服的辦公空間,該如何找人設計?

最酷的辦公室設計在這裡!!
 

恰當的居家軟件,讓人文極簡美得剛剛好!

恰當的居家軟件,讓人文極簡美得剛剛好!

來自:www.zxdyw.com
日期:2013-08-24 10:15:07
人文極簡的空間風格,主要會運用深色和淺色的比例增加大器感,但很多屋主會因此而陷入兩難,想要加進弧形線條使空間柔和,卻又擔心過度的裝飾元素,會使視覺過於複雜化。這次張馨和EVA設計師就要和屋主們分享,如何掌握室內擺設的要領,運用軟件達到柔化氛圍的效果,使空間看起來精緻舒服,又能襯託人文極簡風的特質。

Point 01.

掌握軟件重點,為空間增色

簡約空間可以運用軟件擺設柔化空間線條,EVA設計師建議可以使用窗帘、抱枕裝飾空間,增加色彩的層次感和柔美氣氛;而綠化環境的花草植栽,也可以作為角落和桌面的點綴,搭配出舒服自然的味道。

Point 02.

依據空間大小,選擇盆器和花材

很多人會選擇在居家裡放花束或綠色植物,設計師特別建議,若要以植栽裝飾空間,可以先根據空間大小選擇盆器,例如在客廳或餐廳角落,就可以放大型的落盆,並透過各式各樣花材的色系,自然增添空間的豐富度和生命力。

12閱讀全文 上述內容為轉載或編者觀點,不代表裝一網意見,不承擔任何法律責任。如侵權請聯繫刪除。


相關推薦

  • 美式裝修風格樣板間
  • 瓷磚美縫劑
  • 美甲店裝修
  • 美縫劑什麼牌子好

延伸閱讀

  • 泉泉狂曬小坊美圖 13萬裝148平現代極簡居家
  • 兩套極簡設計案例賞析 158㎡美式風PK106㎡古典風
  • 極簡北歐風一居室公寓裝修案例 美不止一點點
  • 磐多魔賦予家別緻質感 人文知性居家會所氛圍
  • 大道至簡 90後年輕人最愛的6款極簡燈具設計
  • 瓷磚美縫劑買多少剛好夠用 這麼算用量就不會浪費啦
  • 寧波博洋家紡用盜版軟件在美被起訴 面臨賠償
  • 二手房裝修設計 舊屋翻新成簡約人文美宅
  • 用了E0級板材真的環保嗎?來看看E0級板材甲醛釋放量多少

  • 硅藻泥怎麼施工?五分鐘教你學會硅藻泥施工步驟

  • 進門鞋櫃怎麼裝修最合理?裝修網列舉圖片來說明

  • 5平米小餐廳怎麼裝修好看?裝修網分享餐廳裝修設計技巧

本站聲明:網站內容來源於裝修網http://www.zhuangyi.com/,如有侵權,請聯繫我們

【廣告招牌品牌行銷推薦資訊】

找尋專業的行銷公司,幫您從廣告招牌規劃、設計、製作,採一條龍作業流程,節省時間有效率!!

哪裡可以找到更多廣告招牌製作樣式及施工照片呢?

使用防颱招牌,真的能有效防止強風吹襲嗎?帶您來認識軟性無接縫招牌 !!

想知道台北防颱招牌專門製作商家哪裡有?

最專業的桃園防颱招牌設計師有請推薦專家達人共同推薦!!

家裝網提醒業主 秋季裝修木作防乾裂防火

家裝網提醒業主 秋季裝修木作防乾裂防火

來自:中國裝修網
日期:2013-10-10 11:26:09
秋季是最適宜裝修的季節,因為氣候乾燥,木質板材不易返潮,但同時乾燥天氣也會給裝修帶來不少麻煩。裝修網業內人士提醒,秋季裝修既要“防脫水”又要“防上火”,木製品預留好伸縮縫,保證在任何季節都適用。

柜子

櫃體和牆面留足縫隙

空間有限的房間,會將牆壁利用起來做成壁櫃或者吊櫃,且多為定做。因為經常開合,所以除了木頭本身之外,還需要留意連接處的五金件、壁櫃的骨架結實度和櫃門噴漆的處理。進口的五金件價格相對較貴,質量也更好些,消費者可自行配備。在驗收時要仔細觀察,釘子之類的一定要做防鏽處理,櫃門開啟應操作輕便,沒有聲音和難開啟的現象。建議最好在專業衣櫃定製工廠製作,現場安裝,實惠又美觀。

提示:考慮到熱脹冷縮的原理,安裝衣櫃時,櫃體和牆面接縫處須留足縫隙,讓空氣保持流通。一旦天氣開始潮濕了,就可以讓水分在空氣流通中蒸發,保持木櫃的乾燥。否則,木櫃緊貼着牆壁,水分就只能依附在牆面和木柜上,這樣易使傢具的使用壽命變短,衣物也容易受損。

地板

裝修結束后再安裝

木地板施工是技術性很強的項目,不宜和其他項目平行作業。以一百平米的房子為例,一般需要一周時間才能完成整個房間的施工任務。其中木龍骨安裝及基層防潮處理两天,毛板及地板安裝两天,地板層面刨光磨平一天,地板漆塗刷两天。實際鋪裝過程中,地板規格大的要比規格小的省工,地板漆乾的時間會因施工方法和材料品種等有所差異。

提示:為防止把木地板碰壞,木地板的安裝最好在所有裝修結束之後。踢腳線則在地板安裝好后,再行安裝。在鋪設實木地板時,應根據使用場所的環境溫濕度高低來合理安排實木地板的拼裝鬆緊度。如果過松,實木地板收縮就會出現較大的縫隙;過緊,實木地板膨脹時就會起拱。地板安裝好后24小時內,不要有很多人走動,更不要搬重物。

背景牆

飾面板防“脫水”

背景牆用木頭,不僅給家裡增添了色彩,質感也很好,通常可以選擇地板直接上牆以及木質飾面板裝飾等。地板上牆是常用的裝飾手法,木質飾面板效果更加豐富一些,市場上有很多成品飾面板。背景牆的設計,最重要的是和家裡整體風格搭配,並與整個客廳的寬度、沙發和燈光的位置等有關,最好請專業人士進行搭配,或者先出效果圖看一下實際效果,再做決定。

提示:在秋季裝修過程中,對於高檔飾面板如櫸木要做封油處理,以鎖住其內含的水分;對於用作收邊的木線,處理方法也是一樣,而且應該特別注意。因為木線為實木質地,含水率比飾面板高,如果木線內的水分丟失,木線會出現收縮、變形,嚴重影響到飾面板的外觀。

吊頂

採用阻燃材料

吊頂里通常都要鋪設照明等電氣管線,所以用木質吊頂要避免火災危險。天花板木質結構一定要刷防火塗料,最好使用經過防腐防潮處理的優質木料。未來可能需要維修工作,在施工時,必須事先預留維修孔,選擇適當的大小、尺寸作為預留孔,通常留在冷氣還有排水管的地方,可以減少未來維修的困難度。

在木作天花板快要完成時,通常表面還會做一個封板的工,這時候板材和板材之間要預留3毫米-5毫米的勾縫或是間距,作為伸縮縫與塗料填充處理使用。

提示:秋季乾燥,要注意在裝修中採用防火材料,室內吊頂應採用阻燃材料,盡量減少火災危險性。

室內門

不要隱藏合頁

室內門作為家裡整體環境的一部分,其外觀與整體風格的搭配也是一個非常重要的參考因素。有些追求潮流的消費者會選擇色彩鮮艷的室內門,但長期生活在鮮艷奪目的色彩中會造成人的視覺疲勞,對健康不利。

提示:市場還有一些門為了外觀的考慮將合頁隱蔽在門扇內部,而不是暴露在外面,看起來更為整潔。但是這種類型的室內門更有可能出現功能問題,因為合頁在門扇內部,若在使用過程中發生合頁斷裂的問題,難以被覺察。到合頁斷裂,整張門板倒塌時,消費者再找到廠家維修,不僅需要把門拆下來,還有可能延長維修時間,帶來極大不便。

■ 小貼士

收縮開裂不要急於修補

在秋季,木地板收縮、牆體開裂等問題這些都屬於季節轉換中出現的正常現象。因為夏季空氣濕度大,秋季的空氣相對比較乾燥,水分容易流失。此時開裂是正常現象,不要着急,等到春季讓裝飾公司再修補一下,之後材料性能更加穩定,再到乾燥季節,就不容易出問題了。

通風開窗方式適宜

秋天裝修之後不要急於入住,因為秋天氣溫低,裝飾材料氣味較小,但污染還是存在的,所以還是需要放半個月到一個月再入住。這期間,可以適當開窗通風,但不宜開窗過大,時間也最好選在早晚,因為秋季的中午,空氣濕度相對較小,比較乾燥,容易造成木材、牆漆等開裂。如果可以,可以在各個空間放一盆水,調節室內濕度。

木材防乾裂

秋季氣候乾燥,木料運進裝修現場后,要避免放在通風口處,並且要在表面儘快做封油處理。因為此時木料在通風口處易風乾,木材內的水分會流失,導致木材表面乾裂,出現裂紋。

中國裝修網編輯綜合整理報道,更多資訊請登錄http://www.zxdyw.com/

上述內容為轉載或編者觀點,不代表裝一網意見,不承擔任何法律責任。如侵權請聯繫刪除。


相關推薦

  • 陽台防護欄
  • 實木樓梯
  • 實木衣櫃
  • 實木腳線
  • 裝修風格
  • 裝修風格大全
  • 裝修風格分類
  • 裝修風格圖片
  • 裝修風格有哪些
  • 美式裝修風格樣板間
  • 歐式裝修風格
  • 裝修預算
  • 裝修預算表
  • 裝修預算清單
  • 家庭裝修預算
  • 80平米裝修預算
  • 90平米裝修預算
  • 100平米裝修預算
  • 裝修合同
  • 裝修合同樣本
  • 裝修合同範本
  • 房屋裝修合同
  • 裝修合同注意事項
  • 裝修合同書

延伸閱讀

  • 秋季裝修指南 建材幹燥須防火防脫水
  • 天干物燥!秋季裝修木工施工注意防乾裂
  • 春季火災多發期 裝修注意防火、防毒、防變形
  • 夏季裝修牆面塗刷五大禁忌 注意防火防潮防暴晒
  • 秋季環保家裝 業主必知避免六大誤區
  • 裝修網小編提醒謹慎選建材 木地板照樣能鋪在廚房
  • 家裝七大誤區 提醒業主千萬不要“跳坑裡”
  • 秋季裝修旺季到來 秋季家裝問題解決辦法須知
  • 用了E0級板材真的環保嗎?來看看E0級板材甲醛釋放量多少

  • 硅藻泥怎麼施工?五分鐘教你學會硅藻泥施工步驟

  • 進門鞋櫃怎麼裝修最合理?裝修網列舉圖片來說明

  • 5平米小餐廳怎麼裝修好看?裝修網分享餐廳裝修設計技巧

本站聲明:網站內容來源於裝修網http://www.zhuangyi.com/,如有侵權,請聯繫我們

【廣告招牌品牌行銷推薦資訊】

找尋專業的行銷公司,幫您從廣告招牌規劃、設計、製作,採一條龍作業流程,節省時間有效率!!

哪裡可以找到更多廣告招牌製作樣式及施工照片呢?

使用防颱招牌,真的能有效防止強風吹襲嗎?帶您來認識軟性無接縫招牌 !!

想知道台北防颱招牌專門製作商家哪裡有?

最專業的桃園防颱招牌設計師有請推薦專家達人共同推薦!!

家居網教你家裝綠色環保 杜絕污染源頭

家居網教你家裝綠色環保 杜絕污染源頭

來自:www.zxdyw.com
日期:2013-12-02 16:10:38
家庭裝修必須營造一個綠色環保的室內環境,做到無污染、無公害,有助於人們的身體健康。但是在目前的家庭裝修中,由於設計、用料、施工不當,導致裝修后室內污染的情況非常嚴重。家庭裝修如何做到綠色環保呢,裝修網小編今天來談一談這個問題。

家裝的主要污染源是劣塗料、人造板材和放射性超標的石材等,主要的有害物質為甲醛、苯、氨、氧氣以及其他放射性元素等。

氡是自然界惟一的天然放射性氣體,是建材中含有的鐳、釷、鉀三种放射性元素在衰變過程中產生的放射性物質,能夠進入人的呼吸系統造成輻射損傷,誘發肺癌;還會影響人的神經系統,使人精神不振、昏昏欲睡。

甲醛主要會對呼吸系統造成傷害,已被世界衛生組織確認為可疑致癌物質。

苯和苯系列也已經被世界衛生組織確定為致癌物質。人在短時間內吸入高濃度的甲苯、二甲苯,會出現中樞神經系統麻醉的癥狀,輕者頭暈、噁心、胸悶、乏力,嚴重的會出現昏迷,以致呼吸衰竭而死亡。苯主要對皮膚、眼睛和上呼吸道有刺激作用。長期接觸苯系混合物的人,再生障礙性貧血發病率較高,並能引起白血病。孕婦吸入大量甲苯有可能造成胎兒畸形、中樞神經系統功能障礙及生長發育遲緩等缺陷。

因此,家庭裝修一定要減少這些有害物質的污染。

小編鄭重聲明:家庭裝修要做到綠色環保,並不是絕對地沒有污染。任何裝修都會造成室內污染,但只要污染程度不超出國家規定的標準範圍,就不會對人體造成傷害。目前我國的室內有害氣體最高允許濃度,甲醛是0.08毫克/米3,氨是0.5毫克/米3,氡是100-200貝可/米3。

室內”綠色設計”手法>>

1.室內設計室外化。設計師通過設計把室內做得如室外一般,把自然引進室內。

2.通過建築設計或改造建築設計使室內、外通透,或打開部分牆面,使室內、外一體化,創造出開敞的流動空間,讓居住者更多地獲得陽光、新鮮空氣和景色。

3.在城市住宅中,甚至餐飲商業服務的內部空間中追求田園風味,通過設計營造農家田園的舒適氣氛。

4.在室內設計中運用自然造型藝術,即有生命的造型藝術:室內綠化盆栽、盆景、水景、插花等。

5.用繪畫手段在室內創造綠化景觀。

6.室內造園手法。

7.在室內設計中強調自然色彩和自然材質的應用,讓使用者感知自然材質,回歸原始和自然。

8.在室內環境創造中採用模似大自然的聲音效果、氣味效果的手法,。

9.環境是生態學的範疇,”黃土窯洞”等穴居形式、構術為巢的巢居形式等將再度成為建築、室內設計的研究和設計方向。

10.普通的家庭室內樓層高度,一般都在2.5-3米,為了使居住者在室內不感到壓抑,在設計上,可作鏤空雕飾的天棚架,落級在30CM左右,讓鏤空架離天頂在15CM左右,並在鏤空架中裝置暗藏蘭色燈帶或燈管,照射到天頂面上,泛出天藍色光面,使人犹如在幻境中,有一種開闊感、清新感。

11.環保設計的另一個方面就是色彩的搭配和組合,恰當顏色選用和搭配可以起到健康和裝飾的雙重功效。

如何使用綠色建材>>

居室裝潢材料對人體健康至少有六個方面的危害。

1.是”新居綜合症”,居住者有眼、鼻、咽喉刺激、疲勞、頭痛、皮膚刺激、呼吸困難等一系列癥狀。

2.是產生典型的神經行為功能損害,包括記憶力的損傷。

3.是刺激人的三叉神經感受器。

4.是引起呼吸道上的炎症反應。

5.是降低人體的抗病能力(免疫功能)。

6.是具有較明顯的致突變性,證明有可能透發人體腫瘤。

一般來說,裝飾材料中大部分無機材料是安全和無害的,如龍骨及配件、普通型材、地磚、玻璃等傳統飾材,而有機材料中部分化學合成物則對人體有一定的危害,它們大多為多環芳烴,如苯、酚、蒽、醛等及其衍生物,具有濃重的刺激性氣味,可導致人各種生理和心理的病變。

1.牆面裝飾材料的選擇:家居牆面裝飾盡量不大面積使用木製板材裝飾,可將原牆面抹平后刷水性塗料,也可選用新一代無污染PVC環保型牆紙,甚至採用天然織物,如棉、麻、絲綢等作為基材的天然牆紙。

2.地面材料的選擇:地面材料的選擇面較廣,如地磚、天然石材、木地板、地毯等。地磚一般沒有污染,但居室大面積採用天然石材,應選用經檢驗不含放射性元素的板材。選用複合地板或化纖地毯前,應仔細查看相應的產品說。若採用實木地板,應選購有機物散發率較低的地板粘接劑。

3.頂面材料的選擇:居室的層高一般不高,可不做吊頂,將原天花板抹平后刷水性塗料或貼環保型牆紙。若局部或整體吊頂,建議用輕鋼龍骨紙面石膏板、硅鈣板、埃特板等材料替代木龍骨夾板。

4.軟裝飾材料的選擇窗帘、床罩、枕套、沙發布等軟裝飾材料,最好選擇含棉麻成分較高的布料,並注意染料應無異味,穩定性強且不易褪色。

5.木製品塗裝材料的選擇木製品最常用的塗裝材是各類油漆,是眾人皆知的居室污染源。不過,國內已有一些企業研製出環保型油漆,如雅爵、愛的牌裝修漆、鴿牌金屬漆等,均不採用含苯稀釋劑,刺激性氣味較小,揮發較快,受到了用戶的歡迎。

提醒消費者注意以下幾點:

1、不要輕信非專業性的廣告宣傳。對於廠家或商家的廣告宣傳,要多了解有關資料和細節,查閱有關書籍,貨比三家,理智地進行分析比較。

2.不要迷信名牌。產品的知名度高,並不一定代表其質量上乘,更不能表示其不含有害成分。

3.選擇正規企業的飾材產品。特別是通過ISO9000系列質量體系認證或中國方圓標誌產品質量認證的企業。

4.了解他人對某種飾材產品的使用情況。

5.嚴格測量花崗岩和大理石的放射性值是否超標。

6.使用保健抗菌建材:使用滅菌玻璃,牆面使用防菌瓷磚。

7.優質綠色環保塗料:

8.使用天然樹脂漆(大漆)、水性木器清漆、磁漆塗飾建築物門、窗表面。

9.木材是否符合環保的標準,大芯板是否有刺激性氣味,使用專業器材用以判別其異氰化合物、氯、防腐殺蟲劑、遊離甲醛是否超標。

綠色環保施工>>

在使用綠色環保建材的同時,在施工過程之中還要始終保持室內空氣的暢通,及時散發有害氣體,同時對於建築垃圾進行妥善分類處理,保證施工過程之中不會對施工人員健康和環境產生影響。

要盡量選用無毒、少毒、無污染、少污染的施工工藝。現在很多工藝還停留在很低的水平,像粘膠、刷漆等,本身就很容易造成污染;現在刷牆時,刮膩子時常常用107膠,但107膠中含有大量甲醛,已被國家建設部列為淘汰建材,禁止使用。另外,施工工藝的不規範,也使室內污染大大增加。因此,應選擇正規的裝飾公司施工,確保施工過程中綠色、安全。

上述內容為轉載或編者觀點,不代表裝一網意見,不承擔任何法律責任。如侵權請聯繫刪除。


相關推薦

  • 智能家居
  • 什麼是智能家居
  • 智能家居品牌
  • 智能家居分類
  • 智能家居安裝
  • 智能家居布線方案
  • 家居風水布局
  • 家居風水擺設
  • 家居風水植物
  • 智能家居產品

延伸閱讀

  • 建築裝飾裝修行業標準待提高 從源頭杜絕污染
  • 杜絕家居光污染 家裝燈飾品牌有哪些哪家是比較好的
  • 家居消費新體驗 綠色環保成家居家裝消費主流
  • 新裝修住宅8成現室內空氣污染 建材傢具是污染源頭
  • 幼兒園裝修污染嚴重 設計一定要注重綠色環保
  • 室內裝修建材環保最重要 掃除環保誤區綠色家裝
  • 綠色環保是裝修永恆話題 注意避開這些環保家裝誤區
  • 裝修公司偷工減料怎麼辦 裝一網教您從合同中杜絕
  • 用了E0級板材真的環保嗎?來看看E0級板材甲醛釋放量多少

  • 硅藻泥怎麼施工?五分鐘教你學會硅藻泥施工步驟

  • 進門鞋櫃怎麼裝修最合理?裝修網列舉圖片來說明

  • 5平米小餐廳怎麼裝修好看?裝修網分享餐廳裝修設計技巧

本站聲明:網站內容來源於裝修網http://www.zhuangyi.com/,如有侵權,請聯繫我們

【廣告招牌品牌行銷推薦資訊】

找尋專業的行銷公司,幫您從廣告招牌規劃、設計、製作,採一條龍作業流程,節省時間有效率!!

哪裡可以找到更多廣告招牌製作樣式及施工照片呢?

使用防颱招牌,真的能有效防止強風吹襲嗎?帶您來認識軟性無接縫招牌 !!

想知道台北防颱招牌專門製作商家哪裡有?

最專業的桃園防颱招牌設計師有請推薦專家達人共同推薦!!

家居裝修敏感禁區!說不能碰就不要碰

家居裝修敏感禁區!說不能碰就不要碰

來自:www.zxdyw.com
日期:2014-01-13 10:32:25
在家居裝修中,很多業主會忽略家裝中的一些禁區,好比承重牆、房間中的樑柱、衛生間或廚房的防水層等,這些禁區都是在裝修過程中不能拆改和破壞的,否則會破壞建築的整體性,給業戶或鄰居帶來隱患。

據某家裝設計公司的專業工程人員表示,在業主對新房裝修時,在房間內會有9大敏感禁區不能隨意碰,包括:承重牆、牆體中的鋼筋、衛生間和廚房的防水層、“三防”或“五防”的戶門、陽台邊的矮牆、房間中的樑柱、衛生間的排水管道、暖氣和煤氣管道、原有的鋼窗。

裝修中不能拆改承重牆,許多業戶或裝修人員都會知道,但什麼樣的牆才是承重牆,就沒有多少人能說清楚了。一般在磚混結構的建築物中,凡是預製板牆一律不能拆除或開門開窗;而敲擊起來有空聲的牆壁,大多屬於非承重牆,可以拆改。另外,業主在承重牆上開門開窗,這樣也會破壞牆體的承重,也是不允許的。如果在裝修中要拆改屋中的牆壁,最好請建築專業的人看一下,確定是否為承重牆后再施工。在施工之前,還要報物業管理部門備案,得到批准後方可施工。

在房間內,牆體中的鋼筋和房間中的樑柱,它們能啟到支撐作用。如果在埋設管線時將鋼筋或樑柱破壞,就會影響到牆體和樓板的承受力,這樣的牆體和樓板就很容易坍塌或斷裂。一般房間與陽台之間的牆上都有一門一窗,這些門窗都可以拆改,但窗以下的牆不能動,那是陽台邊的矮牆,這段牆叫配重牆,它像秤砣一樣起着挑起陽台的作用。拆改這堵牆,會使陽台的承重力下降,導致陽台下墜。

而對於房間內原有的門窗,像一些“三防”或“五防”的戶門、鋼窗等設施,這些戶門的門框是嵌在混凝土中的,如果拆改會破壞建築結構,相對就降低安全係數。與此同時,不要輕易破壞了房屋內的防水層,在廚房和衛生間的地面下都有防水層,如果破壞了,樓下住戶就會變成水簾洞。如果破壞后重新修建,一定要做“24小時滲水實驗”即在廚房或衛生間中灌水,在24小時后不滲漏方算合格。

在修改房屋內的煤氣、下水等管道時,一定要請專業施工人員進行,因為這些管道直接影響到住戶或該棟樓的整個管道,如果修改不慎,造成管道堵塞或泄露現象,很可能管道漏水、泄氣,所以在裝修時,裝飾公司的工作人員不能輕易代勞。

此外,在家裝的時候,也不要使用一些有污染、過重等材料。像一些有污染性的材料會產生對人體有害的化學物質,盡量選擇天然材料,同時,在裝修后要注意打開門窗通風。然而,對於一些過重的材料,像一些厚度超過1厘米的天然石材,家庭裝修中都不準使用。這些都是業主在裝修中須慎重的地方,在與裝飾公司商定設計方案時,一定要在這方面多留點神,以免給自己和鄰居帶來危險。

上述內容為轉載或編者觀點,不代表裝一網意見,不承擔任何法律責任。如侵權請聯繫刪除。


相關推薦

  • 智能家居
  • 什麼是智能家居
  • 智能家居品牌
  • 智能家居分類
  • 智能家居安裝
  • 智能家居布線方案
  • 家居風水布局
  • 家居風水擺設
  • 家居風水植物
  • 智能家居產品
  • 裝修風格
  • 裝修風格大全
  • 裝修風格分類
  • 裝修風格圖片
  • 裝修風格有哪些
  • 美式裝修風格樣板間
  • 歐式裝修風格
  • 裝修預算
  • 裝修預算表
  • 裝修預算清單
  • 家庭裝修預算
  • 80平米裝修預算
  • 90平米裝修預算
  • 100平米裝修預算

延伸閱讀

  • 裝修主體拆改注意事項 裝修網帶您看哪些禁區不能碰
  • 裝一網分享家裝拆改中絕對不能碰的九大敏感區
  • 年終總結十大裝修黑名單 裝修過程絕不能碰
  • 家裝拆改要注意以下四個方面 這些雷區千萬不能碰
  • 裝修知識早知道 裝修網:絕對不能碰的九大禁區
  • 無框大景伸手就能觸碰大自然 原生態家裝
  • 裝修拆除施工方案 裝修網提醒這九點千萬別亂碰
  • 別樣復古風獨棟別墅裝修設計 古典與現代的浪漫激碰
  • 用了E0級板材真的環保嗎?來看看E0級板材甲醛釋放量多少

  • 硅藻泥怎麼施工?五分鐘教你學會硅藻泥施工步驟

  • 進門鞋櫃怎麼裝修最合理?裝修網列舉圖片來說明

  • 5平米小餐廳怎麼裝修好看?裝修網分享餐廳裝修設計技巧

本站聲明:網站內容來源於裝修網http://www.zhuangyi.com/,如有侵權,請聯繫我們

【廣告招牌品牌行銷推薦資訊】

找尋專業的行銷公司,幫您從廣告招牌規劃、設計、製作,採一條龍作業流程,節省時間有效率!!

哪裡可以找到更多廣告招牌製作樣式及施工照片呢?

使用防颱招牌,真的能有效防止強風吹襲嗎?帶您來認識軟性無接縫招牌 !!

想知道台北防颱招牌專門製作商家哪裡有?

最專業的桃園防颱招牌設計師有請推薦專家達人共同推薦!!

春季裝修寶典 淺析家裝過程中十個主要環節

春季裝修寶典 淺析家裝過程中十個主要環節

來自:www.zxdyw.com
日期:2014-03-24 10:00:30
同樣是建造,人和蜜蜂的區別就在於,蜜蜂的建造是本能的反映,而人在建造之前,腦海中首先會形成構思和框架。所以,如果把家裝比喻成一場戰役,那麼家裝的前期設計就是這場戰役的“作戰方案”,是家裝的“靈魂環節”。

(一)測量

在前期家裝設計中,裝修業主必須還要做的一件事,那就是對自己的房間進行一次詳細的測量,大家不要犯懶,最好親自測量一遍,測量的內容主要包括:

1、明確裝修過程涉及的面積。特別是貼磚面積、牆面漆面積、壁紙面積、地板面積;

2、明確主要牆面尺寸。特別是以後需要設計擺放傢具的牆面尺寸。

裝修網小編提醒家裝業主們,開工之前不要忘記去物業辦理開工手續,交納裝修押金。

(二)主體拆改

進入到施工階段,主體拆改是最先上的一個項目,主要包括拆牆、砌牆、鏟牆皮、拆暖氣、換塑鋼窗等等。主體拆改說白了,就是先把工地的框架先搭起來。

(三)水電改造

水電路改造之前,主體結構拆改應該基本完成了。在水電改造和主體拆改這兩個環節之間,一些裝修業主可能知道,還應該進行櫥櫃的第一次測量。其實所謂的櫥櫃第一次測量並沒有什麼實際內容,因為牆面和地面都沒有處理,櫥櫃設計師不可能給出具體的設計尺寸,而只是就開發商預留的上水口、油煙機插座的位置,提出一些相關裝修建議。主要包括:

1、看看油煙機插座的位置是否影響以後油煙機的安裝;

2、看看水表的位置是否合適;

3、看看上水口的位置是否便於以後安裝水槽。

對於櫥櫃的第一次測量,稍微有經驗的裝修業主完全可以自行完成。水路改造完成之後,最好緊接着把衛生間的防水做了。廚房一般不需要做防水。

有裝修業主一直認為裝修開始之前,一些主料應該事先進場。裝修第一網提醒你,除非是主體拆改需要用的主料,否則,諸如瓷磚、大芯板等主料的進場時間應該在水電改造之後。因為電路改造如果涉及地面開槽的話,瓷磚、大芯板碼放的位置不當的話,工人搬來搬去很是麻煩。前两天就有個裝修業主還跟我提到她家當初就遇到了工人滿屋子來回來去挪磚的問題,在此裝修第一網提醒裝修業主注意。

(四)木工

木工、瓦工、油工是施工環節的“三兄弟”,基本出場順序是:木——瓦——油。基本出場原則是——誰臟誰先上。“誰臟誰先上”也是決定家裝順序的一個基本原則之一,我後面還會提到。

其實像包立管、做裝飾吊頂、貼石膏線之類的木工活從某種意義上說也可以作為主體拆改的一個細環節考慮,本身和水電路改造並不衝突,有時候還需要一些配合,要考慮假牆上是否有水電線路,如果有的話,應該讓水電改造的工人預埋管。”

(五)貼磚

如果工人忙得開的話,工長一般會在“木工老大”還沒有結束的時候就讓“瓦工老二”進場貼磚,這很正常,因為兩者本身沒什麼衝突。

在“瓦工老二”作業的過程,還涉及以下三個環節的安裝:

1、過門石、大理石窗檯的安裝。過門石的安裝可以和鋪地磚一起完成,也可以在鋪地磚之後,大理石窗檯的安裝一般在窗套做好之後,安裝大理石的工人會準備玻璃膠,順手就把大理石和窗套用玻璃膠封住了。

2、地漏的安裝。地漏是家裝五金件中第一個出場的,因為它要和地磚共同配合安裝。所以,裝修業主們在開始逛建材的時候,應該趕早兒買地漏。

3、油煙機的安裝。油煙機是家電第一個出場的,廚房牆地磚鋪好之後,就可以考慮安裝油煙機了。

“瓦工老二”離場,這時候可以約櫥櫃第二次測量了,準確地說,在廚房牆地磚貼完並安裝完油煙機之後,就可以約櫥櫃第二次測量。

(六)刷牆面漆

“油工老三”進場,主要完成牆面基層處理、刷面漆、給“木工老大”打的傢具上漆等工作。準備貼壁紙的裝修業主,只需要讓“油工老三”在計劃貼壁紙的牆面做基層處理就可以。至於是否要留最後一遍面漆,個人感覺這個問題沒必要太較真兒,從我裝修過的經驗來看,留一遍面漆的意義不是很大,因為後面的操作沒有比刷漆再髒的了。

當“老大”、“老二”、“老三”相繼離場之後,很多裝修業主會認為自己的裝修快結束了,其實按環節來數的話,三分之一還不到。大家之所以有這種感覺是因為,人們普遍理解的裝修只是裝修的“施工環節”,其實裝修的“安裝環節”也是裝修的重頭所在。

如果說“設計環節”是把我們未來家的樣子“構想”一下的話,那麼“施工環節”就是把我們的家“包裝”一下,真正說“置備”家當幾乎都在“安裝環節”。

(七)廚衛吊頂

櫥櫃吊頂作為安裝環節打頭陣的,還是在延續對家的“包裝”。在廚衛吊頂的同時,廚衛的防潮吸頂燈、排風扇(浴霸)應該已經買好了。裝修業主們最好把廚衛吸頂燈、排風扇(浴霸)同時裝好,或者留出線頭和開孔。

順道插一句,我是堅決主張“裝修外包論”的,即便工長跟我承諾他的工人水電改造做得如何如何規範、鋁扣板安裝如何如何規矩、木門做的如何如何結實,壁紙貼的如何如何專業、櫥櫃打造的如何如何實用……在我看來,裝修隊所能做的,就是木工、貼磚、刷漆。

因為我相信專業的施工、相信廠家的安裝水準、相信流水線作業的產物,大都要比裝修隊工人的手工略勝一籌。裝修如同博弈,賭的就是工人的手藝,所以,把寶押在“我家工人是施工天才”上,我心裏不踏實。

很多裝修業主之所以讓裝修公司、裝修隊承擔了大量的施工任務,其原因一方面是自己的時間不寬裕,還有一個原因是因為考慮“工程的銜接”問題。

其實裝修的每個環節獨立性都很強,記得前陣子論壇還有南方的裝修業主提出疑問,說他老家那邊裝修,每個環節都是業主請專門的工人做。家庭裝修就這麼點事,本身真的沒什麼銜接可言,反倒是裝修業主們自己在家裝過程應該盡可能發揮所謂的“銜接作用”,準確把握材料的選擇、掌握一些簡單的施工工藝流程、處理好對工人的關係等等,這才是關鍵所在。

真要說因為“銜接”出了問題,比如涉及後期潔具、燈具、五金的安裝等環節由誰來負責的問題,一方面要看你和工人的相處,看最後有沒有人願意“管”你;另一方面,真說到了沒人“管”的份兒上,我還是那句話——“自從上帝發明了錢,就沒有解決不了的問題”。

裝修,質量永遠排在第一位,是主要矛盾,是大原則。某些環節因為“銜接”出了問題,是次要矛盾。裝修業主們在因為次要矛盾而準備在主要矛盾、在大原則上做出讓步的同時,還需慎重。

(八)廚櫃安裝

吊頂結束后,可以約櫥柜上門安裝了。順利的話,一天的時間可以完成。同時安裝的還有水槽(可以不包括上下水件)和煤氣灶,櫥櫃安裝之前最好協調物業把煤氣通了,因為煤氣灶裝好之後需要試氣。

對了,剛才說到吊頂,有個問題值得大家探討,很多裝修業主廚衛吊頂選擇防水石膏板配合防水漆,裝修隊報價一般在120元以上每平米,比一般的鋁扣板、PVC扣板吊頂都要貴。石膏板吊頂從視覺上看起來比較平整,但是以後頂面水管一旦出現問題,或者樓上漏水需要樓下配合維修等,石膏板吊頂就要整體拆除,比起扣板吊頂費事得多。所以,大家在選擇石膏板吊頂的時候還需慎重。

(九)木門安裝

在櫥櫃安裝的第二天,早在一個多月前木門測量完成后,現在可以約安裝了。順利的話,也是一天的時間,裝門的同時要安裝的合頁、門鎖、地吸。裝修業主們事先應該準備好相關五金。

如果你想讓木門廠家安裝窗套、埡口的話,在木門廠家測量的時候也要一併測量,並在木門安裝當天同時安裝,同時應考慮將大理石窗檯的安裝時間向後錯,排在窗套安裝之後。

小貼士:木門的製作周期一般為一個月,所以,為了讓工期銜接緊密,要在主體拆改完成之後儘早讓木門廠家上門就門洞尺寸進行測量。關於門洞的處理,大家需要注意一點,如果家裡門洞的高度不一致,需要工人處理成等高——好看。

(十)地板安裝

在木門安裝的第二天就可以安裝地板了,順利的話,也是一天的時間。地板安裝需要注意以下幾個問題:

1、地板安裝之前,最好讓廠家上門勘測一下地面是否需要找平或局部找平,有的裝修公司或整修隊會建議裝修業主地面找平或局部找平,以地板廠家的實際勘測為準;

2、地板安裝之前,家裡的鋪裝地板的地面要清掃乾淨,要保證地面的乾燥,所以清掃過程不要用水。

3、地板安裝時,有條件的話,地板的切割一定要在走廊。以前論壇還就這個問題討論過,有裝修業主認為在走廊切割地板污染公共區域,不道德。我的想法是完工之後打掃一下,不打緊。在室內切割地板對牆面的污染比較嚴重,類似的還有櫥櫃的人造石檯面的切割,我相信裝修過的裝修業主多少都有體會。

上述內容為轉載或編者觀點,不代表裝一網意見,不承擔任何法律責任。如侵權請聯繫刪除。


相關推薦

  • 十大裝修公司排名
  • 瓷磚十大品牌
  • 潔具衛浴十大品牌
  • 塗料十大品牌
  • 油漆十大品牌
  • 燈飾十大品牌
  • 門口風水十大禁忌
  • 防水材料十大品牌
  • 膩子粉十大品牌
  • 裝修風格
  • 裝修風格大全
  • 裝修風格分類
  • 裝修風格圖片
  • 裝修風格有哪些
  • 美式裝修風格樣板間
  • 歐式裝修風格
  • 裝修預算
  • 裝修預算表
  • 裝修預算清單
  • 家庭裝修預算
  • 80平米裝修預算
  • 90平米裝修預算
  • 100平米裝修預算
  • 裝修合同

延伸閱讀

  • 揭秘春季裝修寶典 家裝全過程20個環節解析
  • 裝修是個老大難 家裝過程20個環節寶典來分擔
  • 解析:裝修過程中家裝監理常見問題
  • 裝修過程中 必須與家裝設計師溝通的4個要點
  • 淺析:家庭裝修過程中的6大禁區
  • 剖析:裝修過程中最易出現問題的環節
  • 家裝中易患的十種”疾病” 裝修千萬別這樣
  • 年終總結十大裝修黑名單 裝修過程絕不能碰
  • 用了E0級板材真的環保嗎?來看看E0級板材甲醛釋放量多少

  • 硅藻泥怎麼施工?五分鐘教你學會硅藻泥施工步驟

  • 進門鞋櫃怎麼裝修最合理?裝修網列舉圖片來說明

  • 5平米小餐廳怎麼裝修好看?裝修網分享餐廳裝修設計技巧

本站聲明:網站內容來源於裝修網http://www.zhuangyi.com/,如有侵權,請聯繫我們

【室內裝潢設計廠商推薦】

打造新奇、好玩、舒服的辦公空間,該如何找人設計?

最酷的辦公室設計在這裡!!
 

異國裝修差異!看日本家庭是怎麼裝修的?

異國裝修差異!看日本家庭是怎麼裝修的?

來自:www.zxdyw.com
日期:2014-05-27 14:55:15
日本人在家庭裝修上的態度與中國截然相反,其所得也與中國人完全相反,這種差別是什麼原因造成的?每個買了房子的中國家庭,大都會成為裝修專家,他們甚至知道裝修公司報價和質量上的貓膩——儘管多數是在事後。

比起中國人,日本人對裝修問題的愚笨是難以想象的。多數日本人無法回答本地的建材市場在哪裡,因為今天大部分日本新房都是精裝修過的,不像中國大量新房是毛胚房。另外,由於早已完成城市化進程且步入老齡化社會,日本二手房交易遠不如中國活躍。而年代較久的二手房,售出前都會找公司重新裝修。在日本,不需自己操心裝修問題被視為理所當然。

即使是精裝房,中國人與日本人的用心程度也截然不同。中國精裝房的購房者大都能說出新房每平方米的裝修造價,這是房產公司必須告之的重要事項,而日本人則對此毫不關心。有兩位旅居日本多年的中國人,在被問及此問題時,竟然用了相同的比方反問:難道你在4S店買汽車時,需要知道汽車的噴漆花了多少錢嗎?

日本建材市場多由單個公司布置巨大的展廳

日本人像看待工業製成品一樣,將裝修視為住房不可分割的一部分。或許是因為日本家庭裝修已接近工業化製造的緣故:

日本公寓住房的家庭裝修,本質上可算工業製成品的組合安裝。住房裝修設計與住房設計建造是一併考慮的。家裝的大部分材料(廚、衛、浴、櫃、桌椅等)都是標準設計的成套工業製成品,裝修工更像汽車生產線上的裝配工,質量非常穩定。由於工業化生產製造的品質和工人的技能,使得家庭裝修使用壽命較長,不像中國因為質量問題短時間內需要頻繁裝修。

日本的現代家居裝修業比歐美起步稍晚,但日本傳統民居以榻榻米計算室內空間的習慣,使之很容易接受德國人率先引入的家居模塊化觀念,八十年代率先完成了家居的工業化生產製造革命,與今天中國非標準化手工作業的家庭裝修相比,質量上自然不可同日而語。

所以,牆紙幾年後卷邊、發霉、起泡怎麼辦?牆皮起泡脫落怎麼辦?木地板開裂或拱起來起伏不平怎麼辦?瓷磚斷裂或脫落怎麼辦?廚房衛生間甚至客廳漏水怎麼辦……

這些中國人熟悉的問題,日本人都無法回答,因為今天日本人的生活中缺少這樣的經驗。

日本室內大量採用牆面貼紙(布)

但是,再精良的工藝,通常十年到二十年,廚衛浴的設施也會出現局部老化現象,但與中國人傾向於整個拆了重來不同,日本人只會委託專業公司對老化設施做整體更新或翻新,而不是把家裡的裝修全部拆掉重來一遍。所以,中國小區里隔三岔五電鑽電錘電鋸的可怕噪音,在日本是極為罕見的。

由於這種翻新裝修(“裝修”這個詞在日本和一些發達國家會因為程度和項目不同使用不同的詞)需要重新設計,這時,房主通常會請專門的建築士(設計師),而不是自己當設計師。也許是因為這類需求較多的緣故,日本是建築設計師最多的國家,其單位人口中的建築設計師是發達國家平均水平的3倍。

日本人購買新房,並不像中國的精裝房一樣缺少選擇。房產公司的樣板房通常設在公司專門的住房展區。每種戶型都有一模一樣已裝修好的樣板房。由於採用模塊化設計,購房者可根據喜好挑選,或根據需求提出另外的需求,不過,附加的選項另外算價。

日本的樣板房(窗外的景色是布景)

標準化設計並不意味着同樣的戶型,裏面的布置會一模一樣。建築商會考慮不同家庭的需求。譬如依照家庭成員數量和年齡,將用戶分為形成期、成長期、成熟期等不同類型的家庭,同樣的戶型,會根據家庭情況不同,在空間布局和功能設置上有不同的安排。並且,由於模塊化設計,它是可調整的,譬如多了一個孩子,或孩子長大獨立出去,都只需要簡單的組裝,就可適應需求。

住戶在挑選住房時,房產商都會仔細詢問其家庭狀況。在更細微的環節上,房產商也會有比用戶有更豐富的經驗。日本房產建築商大都有專門的研究部門,從人體工程學不斷改進住房設計細節。從有老人的家庭,什麼地方需要扶手、怎樣做到輪椅可無障礙通行,到案台、櫃門該如何設計才可讓家庭主婦更順手,都有一套成熟完善的標準。

社會學的研究發現也被引入住房的建築設計和裝修設計上,它使得今天中國與日本家庭的布局差別,又多了文化習慣之外的因素。

123閱讀全文 上述內容為轉載或編者觀點,不代表裝一網意見,不承擔任何法律責任。如侵權請聯繫刪除。


相關推薦

  • 家庭裝修預算
  • 家庭裝修合同
  • 家庭裝修注意事項
  • 家庭裝修報價單
  • 家庭餐廳裝修
  • 家庭廚房裝修
  • 家庭裝修預算清單
  • 家庭陽台裝修
  • 婚房怎麼裝修
  • 婚房怎麼裝修
  • 裝修預算怎麼做
  • 衛生間防水怎麼做
  • 衛生間漏水怎麼辦
  • 空調怎麼清洗
  • 水龍頭漏水怎麼辦
  • 水泥地面起砂怎麼辦
  • 照片牆怎麼掛
  • 怎麼去除油漆味
  • 油漆怎麼洗
  • 暖氣不熱怎麼辦
  • 空調不製冷怎麼辦
  • 裝修風格
  • 裝修風格大全
  • 裝修風格分類

延伸閱讀

  • 日本馬桶蓋被瘋搶日媒不能理解 看日本旅遊買什麼
  • 鋁木窗和木鋁窗差異在哪裡 詳細區分兩者特性差異
  • 衛浴收納:看日本人的家怎麼處理?神清氣爽
  • 不同裝修公司報價差異太大 裝修網揭秘報價單水分
  • 日本東京分層處理精緻裝修 滿滿的日系裝修風格
  • 清包/半包/全包 家庭裝修怎麼包才划算
  • 小戶型裝修借鑒參考經典 日本49㎡小屋精裝
  • 小戶型裝修推薦 89㎡日本溫馨家居裝飾
  • 用了E0級板材真的環保嗎?來看看E0級板材甲醛釋放量多少

  • 硅藻泥怎麼施工?五分鐘教你學會硅藻泥施工步驟

  • 進門鞋櫃怎麼裝修最合理?裝修網列舉圖片來說明

  • 5平米小餐廳怎麼裝修好看?裝修網分享餐廳裝修設計技巧

本站聲明:網站內容來源於裝修網http://www.zhuangyi.com/,如有侵權,請聯繫我們

【室內裝潢設計廠商推薦】

打造新奇、好玩、舒服的辦公空間,該如何找人設計?

最酷的辦公室設計在這裡!!
 

70年/50年產權到期怎麼辦 我們該住哪?

70年/50年產權到期怎麼辦 我們該住哪?

來自:www.zxdyw.com
日期:2014-08-01 16:48:02
我國規定住宅用地的最高年限70年,商業用地40年(有特殊50年限),綜合用地50年。現已明確,屆滿自動續期。續費按當時的1%-10%來增收(即土地使用權出讓金),並且需要屆滿期前一年申請續費。《城市房地產管理法》第二十二條和《物權法》第一百四十九條有相關規定內容:補的費用不會超過5位數。

小編表示這段話實在是太難理解,這意思難道是50年後就要沒房子住了咩?沒房子住那挖個地下洞穴吧,看起來挺涼快的樣子~

70年/50年產權到期怎麼辦 我們該住哪?

70年/50年產權到期怎麼辦 我們該住哪?

70年/50年產權到期怎麼辦 我們該住哪?

注意哦,這裏所謂的商品房產權年限70年並不是房屋所有權年限,而是房屋所在該地塊的土地使用權的年限。

土地使用權出讓合同約定的使用年限屆滿,土地使用者需要繼續使用土地的,應當至遲於屆滿前一年申請續期,除根據社會公共利益需要收回該幅土地的,應當予以批准。經批准准予續期的,應當重新簽訂土地使用權出讓合同,依照規定支付土地使用權出讓金。

土地使用權出讓合同約定的使用年限屆滿,土地使用者未申請續期或者雖申請續期但依照前款規定未獲批準的,土地使用權由國家無償收回。住宅建設用地使用權期間屆滿的,自動續期。非住宅建設用地使用權期間屆滿后的續期,依照法律規定辦理。該土地上的房屋及其他不動產的歸屬,有約定的,按照約定;沒有約定或者約定不明確的,依照法律、行政法規的規定辦理。

這樣子看來的話,小編還是不用擔心住在哪,這些都不是普通老百姓擔心的事情,還是踏踏實實的過日子吧,但是如果你的房子是在80年代建造的,呵呵,太恭喜你啦!準備着隨時有塌樓的準備吧~!

上世紀80年代后,廣東、浙江、山東等沿海地區城市化建設提速,一批“快餐式”樓房密集建成。一些專家指出,如今,許多樓房的建設年齡已經陸續達到20年、30年。由於先天不足,後天裝修過頻、維護不夠等原因,良莠不齊的建築進入“質量報復周期”。

上海3天內就發生兩起“樓裂裂”事件,讓人聽起來毛骨悚然~

畫面太殘酷,我不敢直視了……

上海3天內就發生兩起“樓裂裂”事件

上述內容為轉載或編者觀點,不代表裝一網意見,不承擔任何法律責任。如侵權請聯繫刪除。


相關推薦

  • 衛生間漏水怎麼辦
  • 水龍頭漏水怎麼辦
  • 水泥地面起砂怎麼辦
  • 暖氣不熱怎麼辦
  • 空調不製冷怎麼辦
  • 衛生間防水怎麼做
  • 婚房怎麼裝修
  • 婚房怎麼裝修
  • 空調怎麼清洗
  • 照片牆怎麼掛
  • 裝修預算怎麼做
  • 怎麼去除油漆味
  • 油漆怎麼洗
  • 上海裝修公司哪家好
  • 重慶裝修公司哪家好
  • 廣州裝修公司哪家好
  • 深圳裝修公司哪家好
  • 武漢裝修公司哪家好

延伸閱讀

  • 環渤海首個家居產權商鋪 一舉認籌50套大單
  • 如何判斷40年產權房價值?40年產權房值得購買嗎?
  • 品牌裝飾企業50天備戰 搶先籌劃2011年市場佔有率
  • 兩年折騰婚房依舊如新 70平簡約婚房裝修大曝光
  • 預計2017年最流行的客廳裝修設計效果圖50款
  • 紙價上漲至50-200元/噸不等 紅木價格半年飆升50%
  • 2018年流行的50款玄關裝修設計效果圖送你參考
  • 共有產權住房可以屬於個人 不滿5年不允許轉讓
  • 用了E0級板材真的環保嗎?來看看E0級板材甲醛釋放量多少

  • 硅藻泥怎麼施工?五分鐘教你學會硅藻泥施工步驟

  • 進門鞋櫃怎麼裝修最合理?裝修網列舉圖片來說明

  • 5平米小餐廳怎麼裝修好看?裝修網分享餐廳裝修設計技巧

本站聲明:網站內容來源於裝修網http://www.zhuangyi.com/,如有侵權,請聯繫我們

【室內裝潢設計廠商推薦】

打造新奇、好玩、舒服的辦公空間,該如何找人設計?

最酷的辦公室設計在這裡!!
 

以女性角度打造新古典風 66平珠寶盒般浪漫窩

以女性角度打造新古典風 66平珠寶盒般浪漫窩

來自:www.zxdyw.com
日期:2014-10-27 16:43:58
台北標準格局女性自己的浪漫窩欣賞,現代都市白領女性自信、浪漫、有思想,家就是心靈的港灣,不奢求多豪華但要溫馨,一個女孩子的家當然也要是浪漫的,富有獨特性的。66平珠寶盒般浪漫窩,裝修網推薦,美不止一點。

居住成員:1女孩

房屋面積:66平方米

房屋位置:新北市 木柵

設計風格:新古典

房屋類型:標準格局

空間格局:玄關、客廳、餐廳、休憩室、主卧房、化妝室、更衣室、衛浴×2

主要建材:茶鏡、茶玻、線板、特殊色漆、壁紙

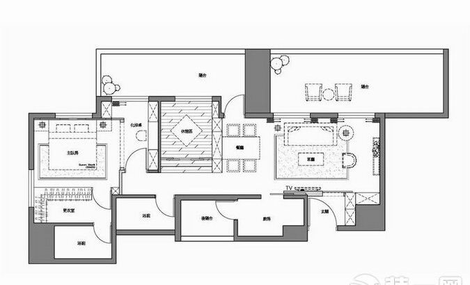
戶型圖

更衣室

裝修網點評:延續古典線條的更衣室,依照屋主需求量身打造,包含衣櫃高度分配及抽屜,使用起來更加得心應手。

電視牆

裝修網點評:以簡潔的古典線條美化電視牆,並隱藏通往更衣室的暗門。

主卧房

裝修網點評:因空間大小及雙面採光的限制,難以找到完整的床頭位置,設計師利用活動式拉門,在不封死窗戶的前提之下,兼顧風水與古典美學。

因居住人口單純,因此討論時決定合併兩間房間,讓女屋主在二十坪空間中,能擁有奢華尺度的大主卧。

和室

裝修網點評:拆除原本的實牆隔間,利用玻璃拉門讓光線能延伸到走道。和室中除了升降桌以外,地板下都是收納空間,再多生活用品也不成問題。

餐廳

裝修網點評:餐廳主牆的櫃內都先預留插座,未來可以擺放小家電。中間茶鏡不只達到借景與延伸效果,背後深度用來擴充後方和室機能,經由雙面櫃的巧思,發揮小空間的最大效益。

傢具

裝修網點評:沙發可以直接挪動,貼近窗戶或造型牆,讓空間運用更加彈性。

造型主牆

裝修網點評:由於屋主未來沒有掛畫的打算,因此直接利用古典線條和壁燈,創造立體層次的造型主牆。

電視牆

裝修網點評:透過拉門修飾原本零碎的主牆,線條延伸展現大尺度的空間感。

客廳

裝修網點評:一人居住的空間完全以女性角度出發,打造優雅細膩的新古典風格。

電視牆

裝修網點評:原先狹長空間有畸零角落與出入口,設計師利用對稱的格子拉門,規劃出完整電視牆,也區分出獨立玄關空間,讓格局配置更完整。

鞋櫃

裝修網點評:鞋櫃下貼心留有懸空高度,讓屋主能直接放近日常穿的高跟鞋。回家后剛脫下的鞋也能直接通風,防止櫃內產生異味。

上述內容為轉載或編者觀點,不代表裝一網意見,不承擔任何法律責任。如侵權請聯繫刪除。

相關推薦

  • 新古典裝修風格
  • 水泥自流平
  • 珠寶店裝修
  • 古典裝修風格
  • 中式古典裝修風格
  • 窗帘盒

延伸閱讀

  • 66平米3房一廳 巧思應運而生現代古典風
  • 新古典66平米裝修樣板房 唯美紫藕色系襯托主人氣質
  • 137平簡約美式風 打造畫展般四居室時尚裝修效果
  • 66平方複式裝修效果圖 擁有小透天般幸福滿足
  • 12坪法式浪漫風裝飾 精緻形塑公主般的柔美
  • 山水畫屏風氣勢磅礴 200平新中式風四居更顯古典大氣
  • 300平大別墅新中式風超古典 餐廳掛字畫文學氣息太濃
  • 220平別墅裝修設計效果圖 白色新中式風古典素雅
  • 用了E0級板材真的環保嗎?來看看E0級板材甲醛釋放量多少
  • 硅藻泥怎麼施工?五分鐘教你學會硅藻泥施工步驟
  • 進門鞋櫃怎麼裝修最合理?裝修網列舉圖片來說明
  • 5平米小餐廳怎麼裝修好看?裝修網分享餐廳裝修設計技巧

本站聲明:網站內容來源於裝修網http://www.zhuangyi.com/,如有侵權,請聯繫我們

【室內裝潢設計廠商推薦】

打造新奇、好玩、舒服的辦公空間,該如何找人設計?

最酷的辦公室設計在這裡!!

買房全攻略 新手必備!防陷阱,你一定要知道!

買房全攻略 新手必備!防陷阱,你一定要知道!

來自:www.zxdyw.com
日期:2014-12-08 09:59:56
對於多數人來說,買房都是一生中的大事。從選擇到購買,每一步都要小心謹慎。買房子都要注意什麼?什麼樣才算是好戶型?看房的時候主要都看些啥?怎樣才能不被某些“黑心中介”忽悠?……趁早準備,才能少走彎路。

1234閱讀全文 上述內容為轉載或編者觀點,不代表裝一網意見,不承擔任何法律責任。如侵權請聯繫刪除。

相關推薦

  • 婚房裝修攻略
  • 90平米全包價格
  • 陽台防護欄
  • 收房注意事項
  • 毛坯房驗收注意事項
  • 交房驗收
  • 交房驗收注意事項
  • 兒童房裝修
  • 兒童房裝修注意事項
  • 如何裝修兒童房
  • 兒童房樣板間
  • 兒童房手繪牆
  • 兒童房上下鋪
  • 婚房裝修設計
  • 婚房布置
  • 如何裝修婚房
  • 裝修婚房多少錢
  • 婚房怎麼裝修
  • 婚房怎麼裝修
  • 婚房裝修注意事項
  • 裝修房子注意事項
  • 兒童房收納
  • 兩房改三房
  • 三房改四房

延伸閱讀

  • 買櫥櫃要防忽悠 五金配件一定要仔細挑
  • 控錢就是省錢 防超支預算實用全攻略
  • 網購建材全攻略 買實惠優質家裝必看
  • 驗收新房一定要知道這些流程攻略 不然要吃大虧!
  • 2018最全裝修省錢攻略 這些預算知識必須要了解
  • 二手房市場升溫 舊房裝修改造設計全攻略
  • 婚房裝修全攻略–記住12道工序讓菜鳥變大師
  • 2016年交房最全攻略 過來人真金白銀出的經驗
  • 用了E0級板材真的環保嗎?來看看E0級板材甲醛釋放量多少
  • 硅藻泥怎麼施工?五分鐘教你學會硅藻泥施工步驟
  • 進門鞋櫃怎麼裝修最合理?裝修網列舉圖片來說明
  • 5平米小餐廳怎麼裝修好看?裝修網分享餐廳裝修設計技巧

本站聲明:網站內容來源於裝修網http://www.zhuangyi.com/,如有侵權,請聯繫我們

【室內裝潢設計廠商推薦】

打造新奇、好玩、舒服的辦公空間,該如何找人設計?

最酷的辦公室設計在這裡!!